Search
Property type
Apartments
Commercial properties
Houses/villas
Land plots
All Residential
Developments
FOR RENT
Location
Unit ID
Price from   €
to   €
area: from  m2
to   m2
Bedrooms from 
to 

Two-bedroom apartment in a new building in Rafailovići, Montenegro

Location
Rafailovići
Unit ID
26111
Rooms
3
Bedrooms
2
Bathrooms
2
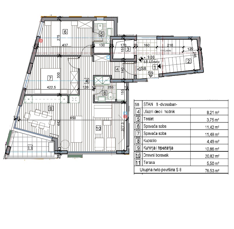
Unit area m2
76.53 m2
Floor / Nb of Floors
4/6
Deal Type
Sale
Price
230 190 €
Year built
2026
Parking lot
Elevator
Management Company
Distance to sea (m)
500

Two-bedroom apartment in a new building in Rafailovići.

 

An apartment in a new building with a sea view and convenient access, located in Rafailovići, just 500 meters from the beach. The building combines modern design, advanced construction technologies, and maximum comfort for living and relaxation.

The apartment is on the 4th floor and consists of a hallway, 2 bathrooms, a kitchen combined with a living room, which opens onto a terrace, as well as two bedrooms.

 

Key Features:
• Design and high-quality construction
• Stunning sea view
• Underground parking
• Elevator.

 

This property is the perfect combination of comfort, coziness, and safety, designed for those who value quality of life and want to enjoy the beauty of Montenegro every day.

 

More detailed information about the building is available via the link.

Floor plan
Similar Properties
A 3-bedroom apartment in a new project in the capital of Montenegro
Podgorica

Bedrooms
3

Apartment area
108,80 m2

228 480 €
2-bedroom apartment in a new building in Tivat
Tivat

Bedrooms
2

Apartment area
62 m2

250 000 €
Modern apartment in a residential complex in Risan
Risan

Bedrooms
1

Apartment area
54,27 m2

217 080 €
2-bedroom apartment in a new residential building in Budva
Budva

Bedrooms
2

Apartment area
79.36 m2

238 080 €