Search
Property type
Apartments
Commercial properties
Houses/villas
Land plots
All Residential
Developments
FOR RENT
Location
Unit ID
Price from   €
to   €
area: from  m2
to   m2
Bedrooms from 
to 

Luxury villa under construction in the center of Tivat, Montenegro

Location
Tivat
Unit ID
26200
Rooms
5
Bedrooms
4
Bathrooms
4
Unit area m2
300 m2
Land Area m2
675 m2
Floor / Nb of Floors
3
Deal Type
Sale
Price
895 000 €
Year built
2026
Swimming pool
Parking lot
Elevator
Security
Distance to sea (m)
500

Luxury villa under construction in the center of Tivat.

 

A villa with approximately 75% completion is offered for sale, located in the center of Tivat, within 5–10 minutes’ walking distance from the main square and the municipal building. This is a unique opportunity to enter the project before the final finishing stage and complete it according to individual preferences.

The villa area is 300 m², with a land plot of 675 m². A panoramic sea view opens from all three floors and from two levels of the plot. All city utilities are connected: water, electricity, sewage, high-speed internet, and public lighting.

The villa is equipped with an elevator providing access to all floors.

 

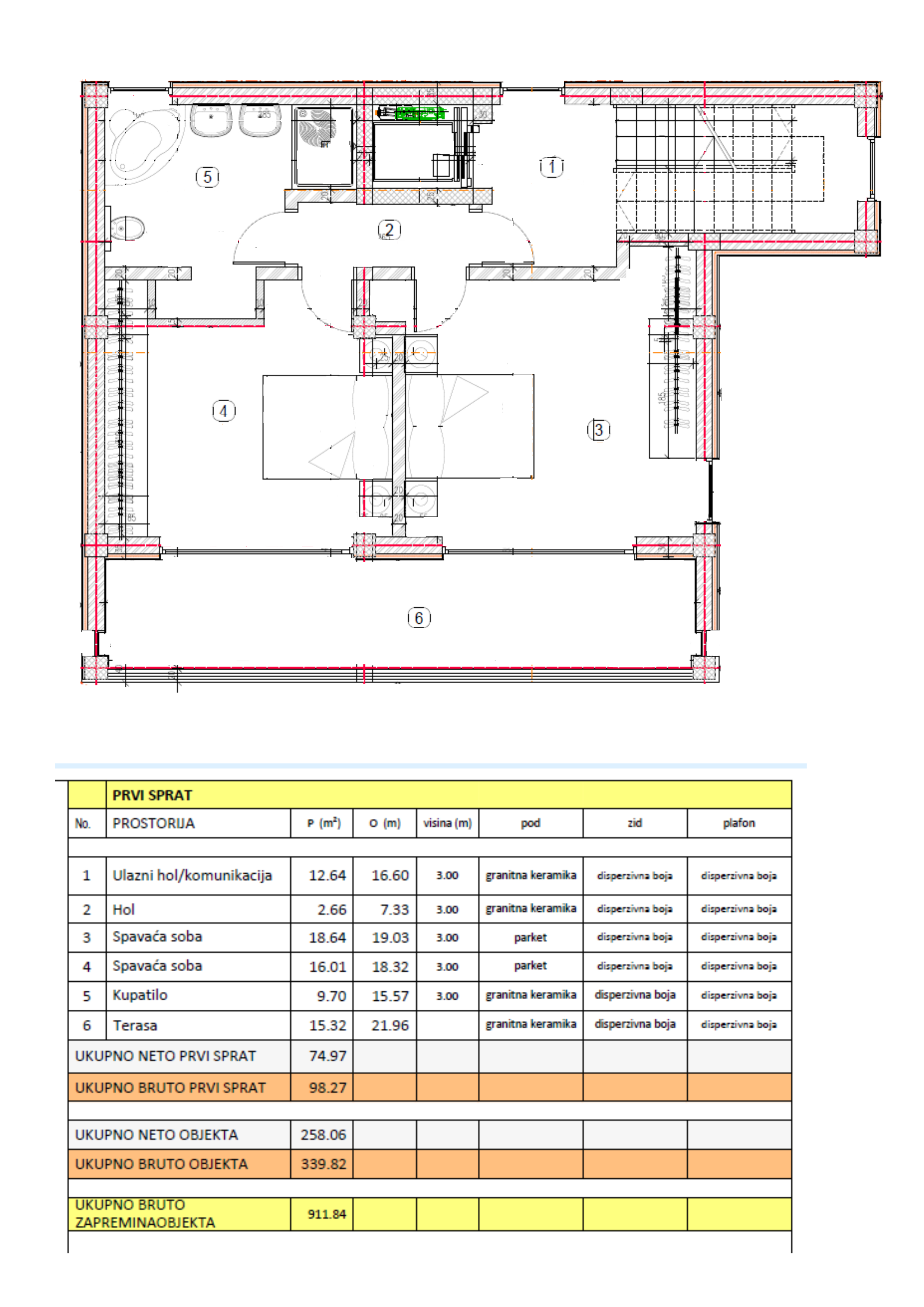
Layout:
1st floor — two bedrooms, a toilet, a walk-in wardrobe, and access to the garden;
2nd floor — two spacious bedrooms with terraces, a bathroom (shower and bathtub), and a laundry room; from this level, there is access via a small bridge to a private courtyard with a swimming pool, summer kitchen, and BBQ area;
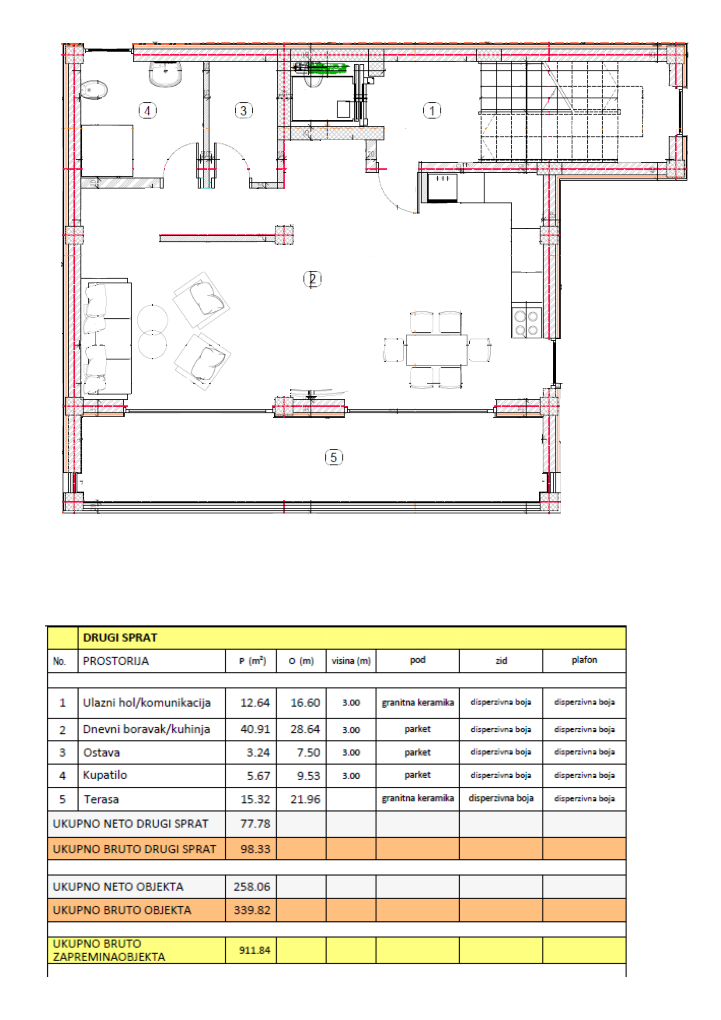
3rd floor — a living room with a kitchen and two toilets.

 

An additional feature is a usable rooftop terrace offering panoramic views of the sea, mountains, and the city.

The plot includes a garage for two cars, a fenced territory, and seven mature Italian olive trees. A video surveillance system is installed.

The villa is designed according to the concept of an energy-independent home: solar panels with battery storage, the possibility of storing and selling electricity back to the grid, underfloor heating, and inverter split systems. The property is designed with provision for an electric vehicle charging station.

 

The property is ideal both for private residence and as an investment, with the opportunity for personal involvement in the final stage of project completion.

Floor plan
Similar Properties
Villa in the new residential development in Rezevici
Rezevici

Bedrooms
5

Apartment area
275 m2

900 000 €
3-bedroom villa in a new premium class residential complex
Đenovići

Bedrooms
3

Apartment area
224 m2

900 000 €