Search
Property type
Apartments
Commercial properties
Houses/villas
Land plots
All Residential
Developments
FOR RENT
Location
Unit ID
Price from   €
to   €
area: from  m2
to   m2
Bedrooms from 
to 

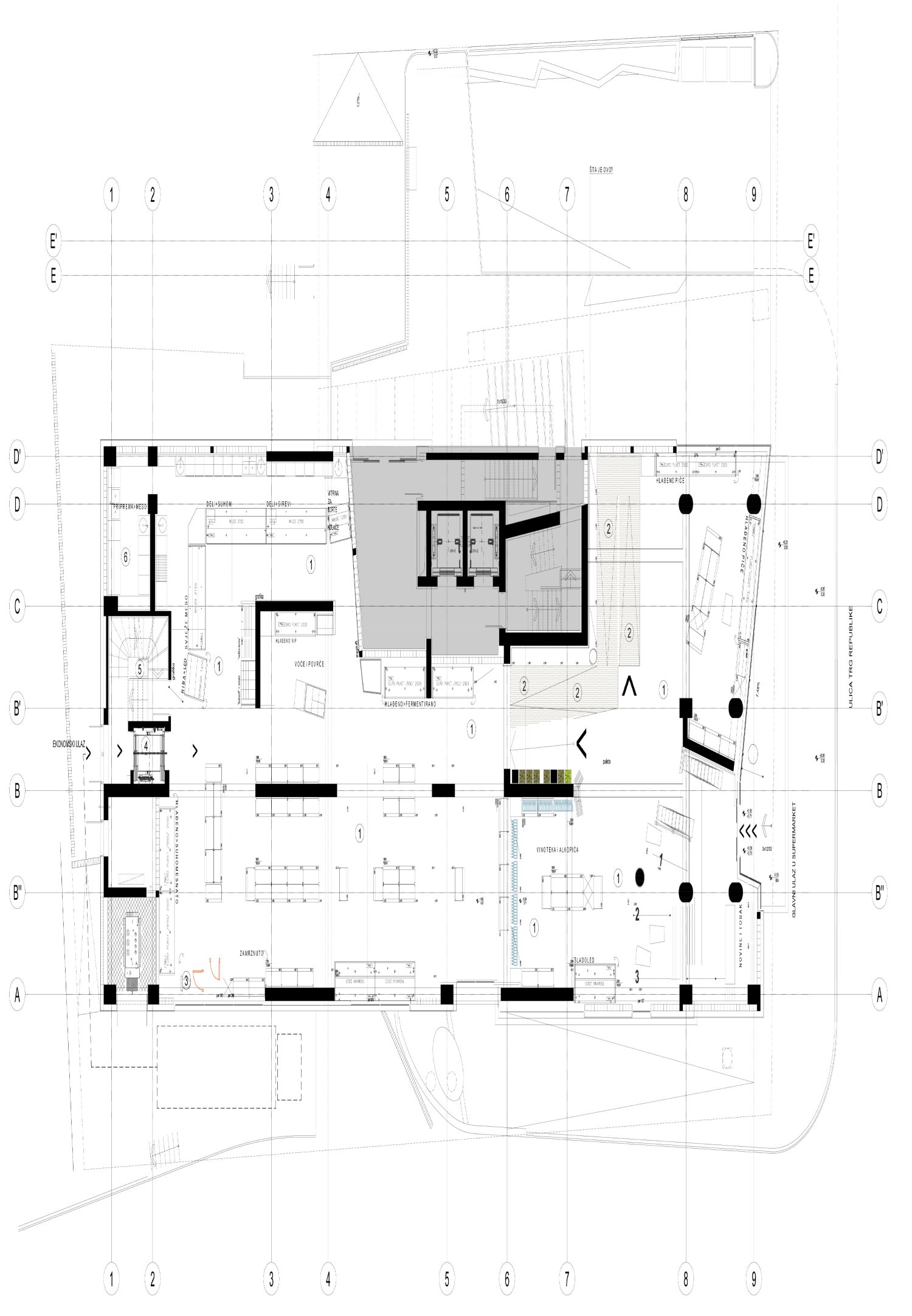
Commercial Property with Premium Tenant – Dukley Residences, Budva, Montenegro

Location
Budva
Unit ID
25401
Unit area m2
735.52 m2
Floor / Nb of Floors
1/10
Deal Type
Sale
Price
5 600 000 €
Parking lot
Management Company
Distance to sea (m)
100

Commercial Property with Premium Tenant – Dukley Residences, Budva


A commercial space with a long-term tenant is offered for sale in the prestigious residential complex Dukley Residences, located in the heart of Budva, near the Old Town and the seafront promenade.

 

Key Information:


- Location: Budva, Dukley Residences
- Area: 735.52 m²
- Price: €5,600,000
- Yield: 5.6% annually
- Lease Agreement: 10-year contract with indexation potential
- Tenant: Voli Premium – the premium segment of Montenegro’s largest retail chain

 

Property Highlights:


- Fully renovated premises, completely leased
- Located on the ground floor of a high-end residential complex
- Convenient access and parking for customers
- High pedestrian and tourist traffic area
- Surrounded by hotels, restaurants, and luxury residences
- Potential for rental growth and capital appreciation

 

Ideal for:


- Investors seeking a turnkey rental business
- Buyers looking for a reliable asset in Montenegro’s top tourist destination

Floor plan