Search
Property type
Apartments
Commercial properties
Houses/villas
Land plots
All Residential
Developments
FOR RENT
Location
Unit ID
Price from   €
to   €
area: from  m2
to   m2
Bedrooms from 
to 

Two-bedroom apartment in a new complex in Budva, Montenegro

Location
Budva
Unit ID
24146
Rooms
4
Bedrooms
2
Bathrooms
2
Unit area m2
76,52 m2
Floor / Nb of Floors
4/4
Deal Type
Sale
Price
225 734 €
Parking lot
Elevator
Management Company
Distance to sea (m)
800

Two-bedroom apartment in the new residential complex "PIETRA RESIDENCE" in the quiet area of Budva - Podkošljun, just a 4-minute drive from the beach and promenade.


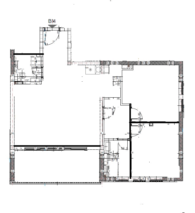
The apartment consists of a hallway, a living room combined with a kitchen, two bedrooms, two bathrooms, and a terrace. The apartment is sold with a finished interior and built-in plumbing.

 


Project features:


• Two-level underground garage

• Installment payments and phased payment options

• Modern design and functional layouts

• Location in a quiet area

• Large selection of apartments

• Panoramic windows and glass railings on the terraces.

 


The developer offers a phased payment plan:


• First installment – 30% upon signing the contract

• Further payments are tied to the construction stages and are agreed upon separately.


These apartments are suitable for both permanent residence and rental business. Due to the high popularity of the resort, real estate in Budva has excellent investment potential – highly liquid and can easily be rented out, providing stable income for owners.


The city’s infrastructure includes a large number of shops, restaurants, two local schools, a Russian school offering an IB diploma, private kindergartens, playgrounds, a health center, private clinics, two food markets, and many recreational and sports activities for children and adults.

 

More detailed information about the complex can be found here.

Floor plan
Similar Properties
The Breza 5-star hotel resort in Kolašin on the banks of the Tara River
Kolasin

Bedrooms
1

Apartment area
48 m2

250 000 €
2-bedroom apartment on the second line of the sea in Petrovac
Petrovac

Bedrooms
2

Apartment area
69 m2

245 000 €
1-bedroom apartment in a new premium complex in Budva
Budva

Bedrooms
1

Apartment area
41,58 m2

245 580 €
New studio apartment with a large terrace in Donja Lastva, Tivat
Donja Lastva

Bedrooms
studio

Apartment area
87 m2

210 000 €