Search
Property type
Apartments
Commercial properties
Houses/villas
Land plots
All Residential
Developments
FOR RENT
Location
Unit ID
Price from   €
to   €
area: from  m2
to   m2
Bedrooms from 
to 

Exclusive apartment with sea view in Kotor Bay, Montenegro

Location
Muo
Unit ID
22118
Rooms
3
Bedrooms
2
Bathrooms
2
Unit area m2
204 m2
Land Area m2
44 m2
Floor / Nb of Floors
2/3
Deal Type
Sale
Parking lot
Distance to sea (m)
50

New luxury apartments with a large terrace in a modern villa near seafront in the Bay of Kotor. The house has only 3 apartments, each of which occupies the entire floor.

 

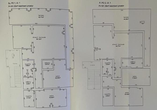
Very successful layout - the apartments consist of a living room combined with a kitchen and dining area, two bedrooms, two bathrooms, a storage room, a laundry room and a large terrace (44 m2) and a green garden area (40 m2). Panoramic windows offer stunning panoramic views of the Bay of Kotor and the Old Town of Kotor.

 

This new modern villa is located just 50 meters from the seafront in Muo.

Muo is a quiet town located across the bay from the UNESCO World Heritage-listed Old Town of Kotor.

 

The villa is built to the highest standards, finishing work is done using high quality materials.

 

There is also a similar apartment on the ground floor with a plot of 120 m2.

 

The villa has 3 large indoor garages of 23 m2 each, with convenient access from the road.

 

This offer is ideal for both a comfortable long stay and for use as a summer residence.

Floor plan
Similar Properties
Two-bedroom apartment in the new condo complex in Budva
Budva

Bedrooms
2

Apartment area
71 m2

SOLD
New 2-bedroom apartment in a brand-new premium building
Budva

Bedrooms
2

Apartment area
69 m2

SOLD
Fully furnished duplex apartment near waterfront in Rafailovici
Rafailovići

Bedrooms
2

Apartment area
92 m2

SOLD
Furnished apartment in a residential complex with a stunning view of the Bay of Kotor
Orahovac

Bedrooms
2

Apartment area
100 m2

SOLD